レオパレスタウンコート 103号室 四国中央市上柏町[アパート]

レオパレスタウンコート 103号室 四国中央市上柏町[アパート]

アパート[四国中央市上柏町]

会員の方

閉じる

物件詳細

レオパレスタウンコート 103号室 四国中央市上柏町[アパート]

レオパレスタウンコート 103号室 四国中央市上柏町[アパート] の物件詳細ページです。

物件種別: アパート

お問い合わせ番号:SK05897

間取り(面積)

1K

( 23.18㎡ )

賃料(管理費等)

4.6万円

( 6500円 )

交通: 予讃線 伊予三島駅 徒歩21分

敷金/礼金: - / 1ヶ月

保証金/敷引/償却金: - / - / -

所在地: 四国中央市上柏町

築年月: 2005年4月

 

問い合わせ(無料)

TEL: 0120-59-5277

お問い合わせ番号: SK05897

QRコード

資料請求などはこちら

問い合わせ(無料)

TEL: 0120-59-5277

お問い合わせ番号: SK05897

セールスポイント

設備 宅配BOX,電気コンロ,バス・トイレ別,浴室乾燥,温水洗浄便座,エアコン,家電付,家具付,TVインターホン,給湯,室内洗濯機置場
天井高 空調 1基
駐車場 駐車場:有(敷地内) 5500円/月~ 駐車可能台数(5台以上) 駐輪場:有
周辺施設 コンビニ:ポプラ nikko四国中央店 248m
スーパー:ハローズ 三島店 580m
スーパー:ワッツウィズ 三島ハローズ店 579m
コンビニ:ファミリーマート 四国中央大柏店 452m
ドラッグストア:クスリのアオキ四国中央三島店 895m
ショッピング施設:いよてつ高島屋四国中央店 603m
コンビニ:セブンイレブン 四国中央三島宮川店 927m
コンビニ:ファミリーマート 四国中央宮川二丁目店 985m

物件概要

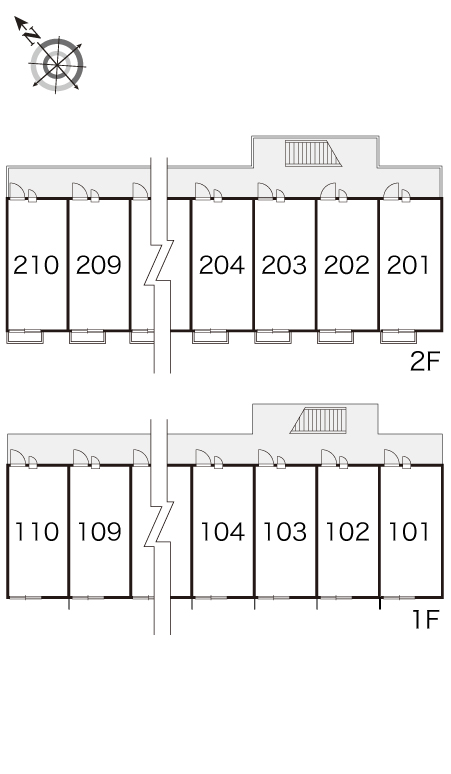
物件名 レオパレスタウンコート 103号室
物件所在地 愛媛県四国中央市上柏町12-4
交通機関 予讃線 伊予三島駅 徒歩21分
専有面積 23.18㎡
所在階/地上階数 1 / 2 部屋向き
建物構造 木造 築年月 2005年4月
総戸数 20
賃料 4.6万円 管理費等 6500円
敷金 - 礼金 1ヶ月
保証金 - 更新料 16,500円
積増し敷金 - 積増し理由
その他一時金 室内清掃費用:41,800円 その他費用
損害保険 有 料金:26680円 損保期間:24ヶ月 
契約形態 普通借家契約 期間 契約期間:2年
保証会社 必須 保証会社の利用:利用料の100%~120% 保証人代行 必須
現況 居住中 入居時期 期日指定 2026年1月下旬

その他

取引態様 仲介先物 自社管理番号 SK05897
情報更新日 2025年12月11日 次回更新予定日 2026年1月10日
不動産会社コード 2113746 物件管理コード 1105114581440000037315
  • ※間取りの「S」はサービスルーム(納戸)です。
  • ※QRコードは(株)デンソーウェーブの登録商標です。

資料請求などはこちら

問い合わせ(無料)

TEL: 0120-59-5277

お問い合わせ番号: SK05897

お問い合わせ先:株式会社セイコー不動産 おうちTOWN四国中央店

所在地 : 愛媛県四国中央市妻鳥町1217-1
TEL : 0120-59-5277
免許番号 : 愛媛県知事(1)第5671号
加盟団体 : 四国地区不動産公正取引協議会,(公社)愛媛県宅地建物取引業協会

この部屋を見学予約

ホームへ戻る